2-комн., 58.72 м²

8 971 200 ₽Цена при 100% оплате140 000 ₽/м²

ЖК Горизонты • Застройщик Монолит

Симферополь
Дом сдан
7 этаж из 7

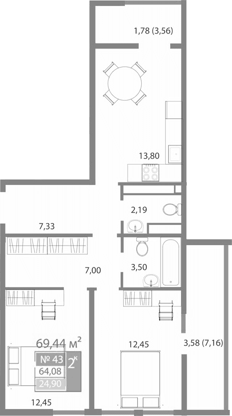
Планировка

О квартире

Тип квартиры2-комн.
Общая площадь58.72 м²
Площадь комнат12.45 м², 12.45 м²
Площадь кухни13.8 м²
Приведенная площадь (для расчета цены)64.08 м²
Этаж7/7 эт.

Дополнительно

ОтделкаБез отделки
Высота потолков2.85 м
Санузлы3
Номер квартиры43
Срок сдачиДом сдан

Условия покупки

Стоимость8 971 200 ₽

Расположение

Локация комплекса и инфраструктура рядом