3-комн., 77.86 м²

14 050 000 ₽Цена при 100% оплате175 779 ₽/м²

ЖК Город Мира • Застройщик ГК Карбон. Симферополь

Симферополь
Дом сдан
7 этаж из 9

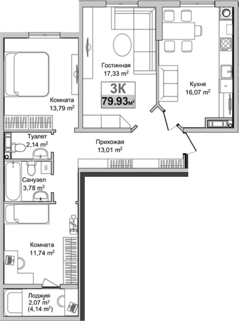
Планировка

О квартире

Тип квартиры3-комн.
Общая площадь77.86 м²
Площадь комнат17.33 м², 13.79 м², 11.74 м²
Площадь кухни16.07 м²
Приведенная площадь (для расчета цены)79.93 м²
Этаж7/9 эт.

Дополнительно

ОтделкаПодчистовая
Высота потолков2.8 м
Санузлы3
Номер квартиры35
Срок сдачиДом сдан

Условия покупки

Стоимость14 050 000 ₽

Расположение

Локация комплекса и инфраструктура рядом