2-комн., 49.62 м²

8 489 638 ₽Цена при 100% оплате160 424 ₽/м²

ЖК Единство • Застройщик Монолит

Симферополь
июнь 2027 г.
2 этаж из 12

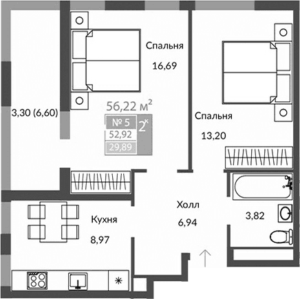
Планировка

О квартире

Тип квартиры2-комн.
Общая площадь49.62 м²
Площадь комнат16.69 м², 13.2 м²
Площадь кухни8.97 м²
Приведенная площадь (для расчета цены)52.92 м²
Этаж2/12 эт.

Дополнительно

ОтделкаБез отделки
Высота потолков2.7 м
Санузлы1
Номер квартиры5
Срок сдачииюнь 2027 г.

Условия покупки

Стоимость8 489 638 ₽

Расположение

Локация комплекса и инфраструктура рядом