4-комн., 74.1 м²

12 776 083 ₽Цена при 100% оплате156 378 ₽/м²

ЖК Жигулина Роща • Застройщик СЗ СКГ

Симферополь
март 2028 г.
2 этаж из 19

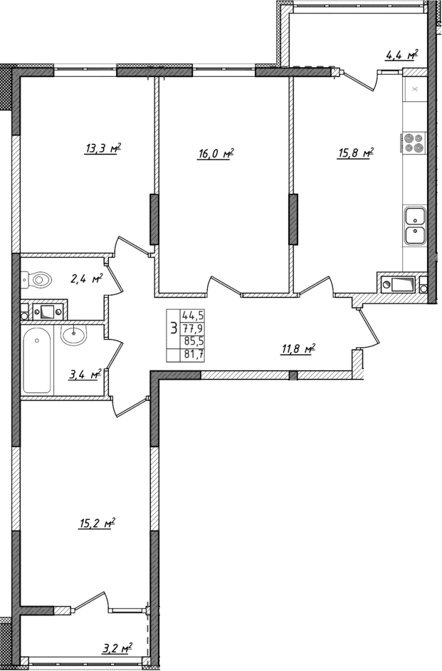
Планировка

О квартире

Тип квартиры4-комн.
Общая площадь74.1 м²
Площадь комнат16 м², 13.3 м², 15.2 м²
Площадь кухни15.8 м²
Приведенная площадь (для расчета цены)81.7 м²
Этаж2/19 эт.

Дополнительно

ОтделкаПодчистовая
Высота потолков2.8 м
Санузлы2
Номер квартиры310
Срок сдачимарт 2028 г.

Условия покупки

Стоимость12 776 083 ₽

Расположение

Локация комплекса и инфраструктура рядом