3-комн., 58.87 м²

13 728 418 ₽Цена при 100% оплате218 015 ₽/м²

ЖК Квартал Видный • Застройщик Монолит

Севастополь
июнь 2027 г.
11 этаж из 12

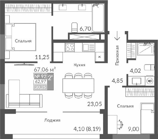
Планировка

О квартире

Тип квартиры3-комн.
Общая площадь58.87 м²
Площадь комнат11.25 м², 9 м²
Площадь кухни23.05 м²
Приведенная площадь (для расчета цены)62.97 м²
Этаж11/12 эт.

Дополнительно

ОтделкаБез отделки
Высота потолков3.15 м
Санузлы3
Номер квартиры92
Срок сдачииюнь 2027 г.

Условия покупки

Стоимость13 728 418 ₽

Расположение

Локация комплекса и инфраструктура рядом