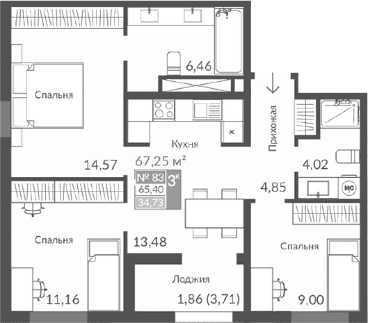
4-комн., 63.54 м²

14 767 924 ₽Цена при 100% оплате225 809 ₽/м²

ЖК Квартал Видный • Застройщик Монолит

Севастополь
июнь 2027 г.
10 этаж из 12

Планировка

О квартире

Тип квартиры4-комн.
Общая площадь63.54 м²
Площадь комнат14.57 м², 11.16 м², 9 м²
Площадь кухни13.48 м²
Приведенная площадь (для расчета цены)65.4 м²
Этаж10/12 эт.

Дополнительно

ОтделкаБез отделки
Высота потолков3.15 м
Санузлы3
Номер квартиры83
Срок сдачииюнь 2027 г.

Условия покупки

Стоимость14 767 924 ₽

Расположение

Локация комплекса и инфраструктура рядом