Коттеджи, 271 м²

39 500 000 ₽Цена при 100% оплате145 756 ₽/м²

ЖК Коттеджный поселок Аутка • Застройщик СК Берег

Ялта
Дом сдан
1 этаж из 3

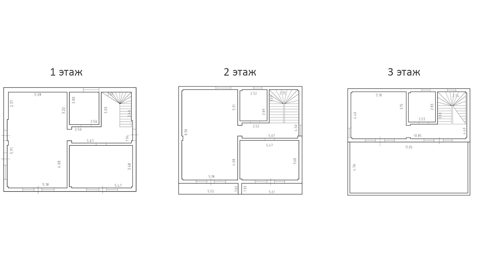
Планировка

О квартире

Тип квартирыКоттеджи
Общая площадь271 м²
Площадь комнат271 м²
Площадь кухни0 м²
Приведенная площадь (для расчета цены)271 м²
Этаж1/3 эт.

Дополнительно

ОтделкаБез отделки
Высота потолков3.2 м
Санузлы3
Номер квартиры2.271
Срок сдачиДом сдан

Условия покупки

Стоимость39 500 000 ₽

Расположение

Локация комплекса и инфраструктура рядом