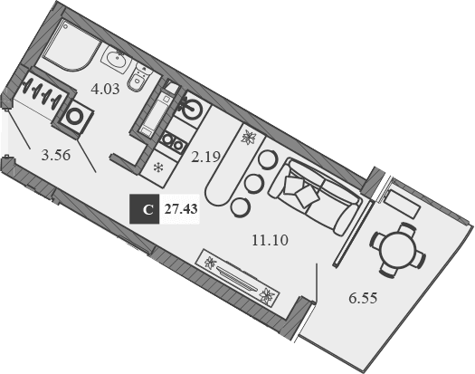
Студия, 20.88 м²

14 778 317,54 ₽Цена при 100% оплате538 765 ₽/м²

ЖК Крымская Резиденция • Застройщик ГК Интеллект

Алушта
Дом сдан
3 этаж из 20

Планировка

О квартире

Тип квартирыСтудия
Общая площадь20.88 м²
Площадь комнат13.29 м²
Площадь кухни0 м²
Приведенная площадь (для расчета цены)27.43 м²
Этаж3/20 эт.

Дополнительно

ОтделкаПодчистовая
Высота потолков2.85 м
Санузлы1
Номер квартиры13
Срок сдачиДом сдан

Условия покупки

Стоимость14 778 317,54 ₽

Расположение

Локация комплекса и инфраструктура рядом