2-комн., 41.28 м²

22 518 229,01 ₽Цена при 100% оплате408 605 ₽/м²

ЖК Крымская Резиденция • Застройщик ГК Интеллект

Алушта
декабрь 2026 г.
11 этаж из 16

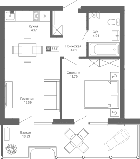
Планировка

О квартире

Тип квартиры2-комн.
Общая площадь41.28 м²
Площадь комнат11.79 м²
Площадь кухни19.76 м²
Приведенная площадь (для расчета цены)55.11 м²
Этаж11/16 эт.

Дополнительно

ОтделкаПодчистовая
Высота потолков2.85 м
Санузлы1
Номер квартиры101
Срок сдачидекабрь 2026 г.

Условия покупки

Стоимость22 518 229,01 ₽

Расположение

Локация комплекса и инфраструктура рядом