2-комн., 65.12 м²

12 442 170 ₽Цена при 100% оплате183 000 ₽/м²

ЖК Лермонтовский • Застройщик СЗ Лермонтовский

Симферополь
сентябрь 2027 г.
2 этаж из 9

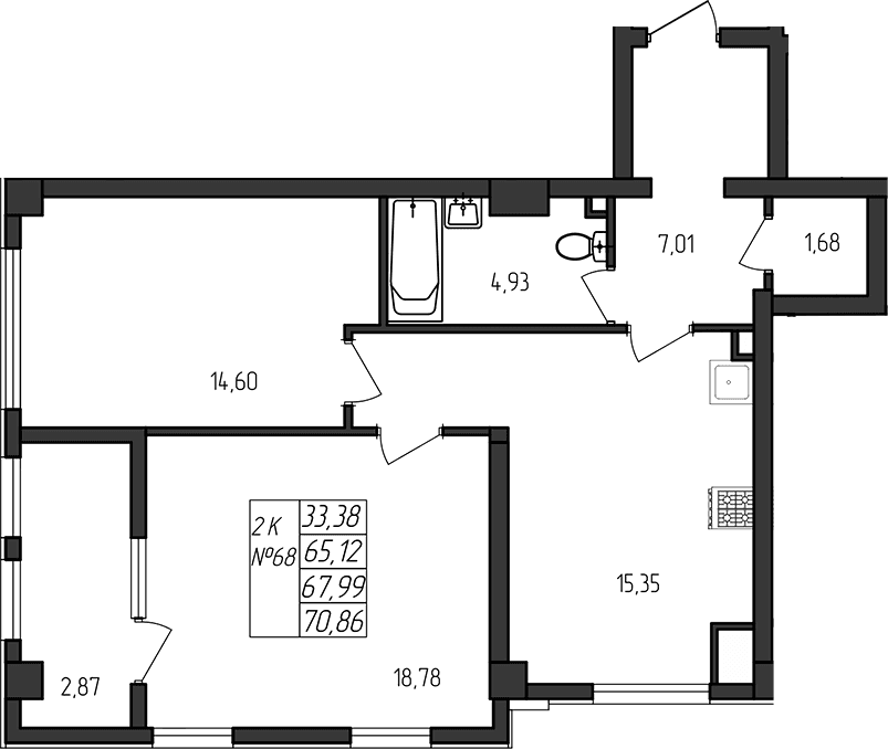
Планировка

О квартире

Тип квартиры2-комн.
Общая площадь65.12 м²
Площадь комнат14.60 м², 18.78 м²
Площадь кухни15.35 м²
Приведенная площадь (для расчета цены)67.99 м²
Этаж2/9 эт.

Дополнительно

ОтделкаБез отделки
Высота потолков2.87 м
Санузлы1
Номер квартиры68
Срок сдачисентябрь 2027 г.

Условия покупки

Стоимость12 442 170 ₽

Расположение

Локация комплекса и инфраструктура рядом