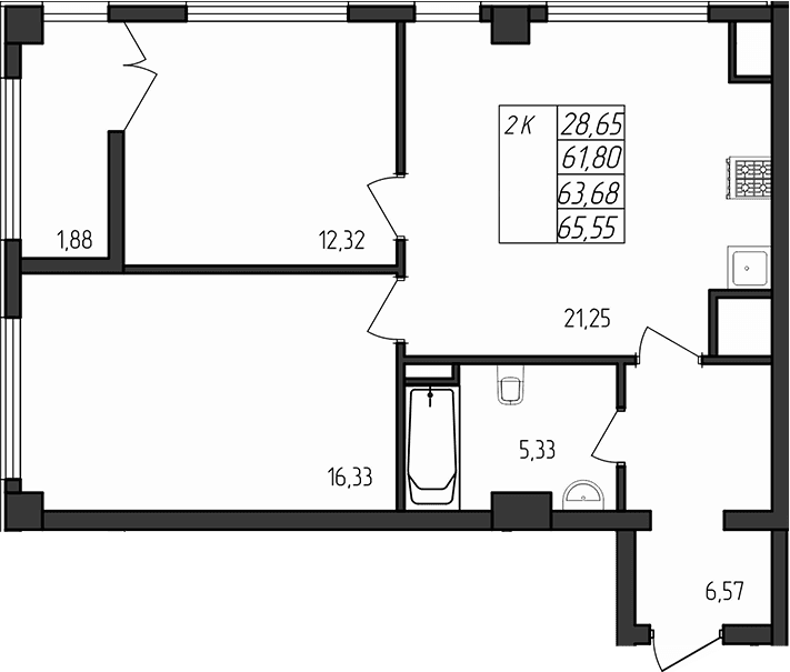
2-комн., 61.8 м²

12 417 600 ₽Цена при 100% оплате195 000 ₽/м²

ЖК Лермонтовский • Застройщик СЗ Лермонтовский

Симферополь
сентябрь 2027 г.
4 этаж из 9

Планировка

О квартире

Тип квартиры2-комн.
Общая площадь61.8 м²
Площадь комнат12.32 м², 16.33 м²
Площадь кухни21.25 м²
Приведенная площадь (для расчета цены)63.68 м²
Этаж4/9 эт.

Дополнительно

ОтделкаБез отделки
Высота потолков2.87 м
Санузлы1
Номер квартиры81
Срок сдачисентябрь 2027 г.

Условия покупки

Стоимость12 417 600 ₽

Расположение

Локация комплекса и инфраструктура рядом