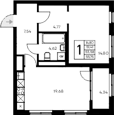
1-комн., 51.41 м²

9 477 500 ₽Цена при 100% оплате170 000 ₽/м²

ЖК Листория • Застройщик Интерстрой. Симферополь

Симферополь
сентябрь 2028 г.
3 этаж из 4

Планировка

О квартире

Тип квартиры1-комн.
Общая площадь51.41 м²
Площадь комнат14.8 м²
Площадь кухни19.68 м²
Приведенная площадь (для расчета цены)55.75 м²
Этаж3/4 эт.

Дополнительно

ОтделкаПодчистовая
Высота потолков3 м
Санузлы1
Номер квартиры10
Срок сдачисентябрь 2028 г.

Условия покупки

Стоимость9 477 500 ₽

Расположение

Локация комплекса и инфраструктура рядом