1-комн., 42.86 м²

7 961 100 ₽Цена при 100% оплате170 000 ₽/м²

ЖК Листория • Застройщик Интерстрой. Симферополь

Симферополь
сентябрь 2028 г.
3 этаж из 4

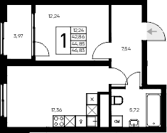
Планировка

О квартире

Тип квартиры1-комн.
Общая площадь42.86 м²
Площадь комнат12.24 м²
Площадь кухни17.36 м²
Приведенная площадь (для расчета цены)46.83 м²
Этаж3/4 эт.

Дополнительно

ОтделкаПодчистовая
Высота потолков3 м
Санузлы1
Номер квартиры38
Срок сдачисентябрь 2028 г.

Условия покупки

Стоимость7 961 100 ₽

Расположение

Локация комплекса и инфраструктура рядом