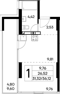
Студия, 31.32 м²

12 100 200 ₽Цена при 100% оплате335 000 ₽/м²

ЖК Лучистое • Застройщик Интерстрой. Алушта

Алушта
сентябрь 2027 г.
6 этаж из 16

Планировка

О квартире

Тип квартирыСтудия
Общая площадь31.32 м²
Площадь комнат19.57 м²
Площадь кухни0 м²
Приведенная площадь (для расчета цены)36.12 м²
Этаж6/16 эт.

Дополнительно

ОтделкаБез отделки
Высота потолков2.7 м
Санузлы1
Номер квартиры41
Срок сдачисентябрь 2027 г.

Условия покупки

Стоимость12 100 200 ₽

Расположение

Локация комплекса и инфраструктура рядом