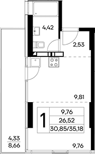
Студия, 30.85 м²

12 664 800 ₽Цена при 100% оплате360 000 ₽/м²

ЖК Лучистое • Застройщик Интерстрой. Алушта

Алушта
сентябрь 2027 г.
11 этаж из 16

Планировка

О квартире

Тип квартирыСтудия
Общая площадь30.85 м²
Площадь комнат19.57 м²
Площадь кухни0 м²
Приведенная площадь (для расчета цены)35.18 м²
Этаж11/16 эт.

Дополнительно

ОтделкаБез отделки
Высота потолков2.7 м
Санузлы1
Номер квартиры91
Срок сдачисентябрь 2027 г.

Условия покупки

Стоимость12 664 800 ₽

Расположение

Локация комплекса и инфраструктура рядом