1-комн., 48.24 м²

16 847 000 ₽Цена при 100% оплате337 277 ₽/м²

ЖК Лучистое • Застройщик Интерстрой. Алушта

Алушта
сентябрь 2027 г.
13 этаж из 17

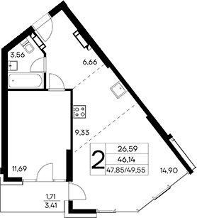
Планировка

О квартире

Тип квартиры1-комн.
Общая площадь48.24 м²
Площадь комнат11.69 м²
Площадь кухни24.23 м²
Приведенная площадь (для расчета цены)49.95 м²
Этаж13/17 эт.

Дополнительно

ОтделкаБез отделки
Высота потолков2.7 м
Санузлы1
Номер квартиры160
Срок сдачисентябрь 2027 г.

Условия покупки

Стоимость16 847 000 ₽

Расположение

Локация комплекса и инфраструктура рядом