1-комн., 48.35 м²

17 771 300 ₽Цена при 100% оплате355 000 ₽/м²

ЖК Лучистое • Застройщик Интерстрой. Алушта

Алушта
сентябрь 2027 г.
17 этаж из 17

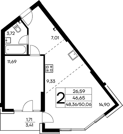
Планировка

О квартире

Тип квартиры1-комн.
Общая площадь48.35 м²
Площадь комнат11.69 м²
Площадь кухни24.23 м²
Приведенная площадь (для расчета цены)50.06 м²
Этаж17/17 эт.

Дополнительно

ОтделкаБез отделки
Высота потолков2.7 м
Санузлы1
Номер квартиры195
Срок сдачисентябрь 2027 г.

Условия покупки

Стоимость17 771 300 ₽

Расположение

Локация комплекса и инфраструктура рядом