1-комн., 48.04 м²

16 230 500 ₽Цена при 100% оплате325 000 ₽/м²

ЖК Лучистое • Застройщик Интерстрой. Алушта

Алушта
сентябрь 2027 г.
8 этаж из 17

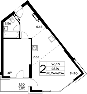
Планировка

О квартире

Тип квартиры1-комн.
Общая площадь48.04 м²
Площадь комнат11.69 м²
Площадь кухни24.23 м²
Приведенная площадь (для расчета цены)49.94 м²
Этаж8/17 эт.

Дополнительно

ОтделкаБез отделки
Высота потолков2.7 м
Санузлы1
Номер квартиры90
Срок сдачисентябрь 2027 г.

Условия покупки

Стоимость16 230 500 ₽

Расположение

Локация комплекса и инфраструктура рядом