Таунхаусы, 202.73 м²

46 990 000 ₽Цена при 100% оплате222 491 ₽/м²

ЖК Миндаль. СЗ Исток • Застройщик СЗ Исток

Ялта
Дом сдан
3 этаж из 4

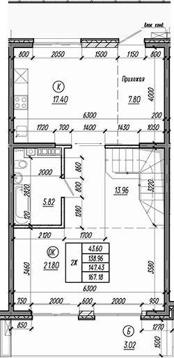
Планировка

О квартире

Тип квартирыТаунхаусы
Общая площадь202.73 м²
Площадь комнат21.8 м², 13.08 м², 21.8 м²
Площадь кухни17.4 м²
Приведенная площадь (для расчета цены)211.2 м²
Этаж3/4 эт.

Дополнительно

ОтделкаПодчистовая
Высота потолков3 м
Санузлы3
Номер квартиры17
Срок сдачиДом сдан

Условия покупки

Стоимость46 990 000 ₽

Расположение

Локация комплекса и инфраструктура рядом