Таунхаусы, 263.24 м²

64 990 000 ₽Цена при 100% оплате240 348 ₽/м²

ЖК Миндаль. СЗ Исток • Застройщик СЗ Исток

Ялта
Дом сдан
1 этаж из 3

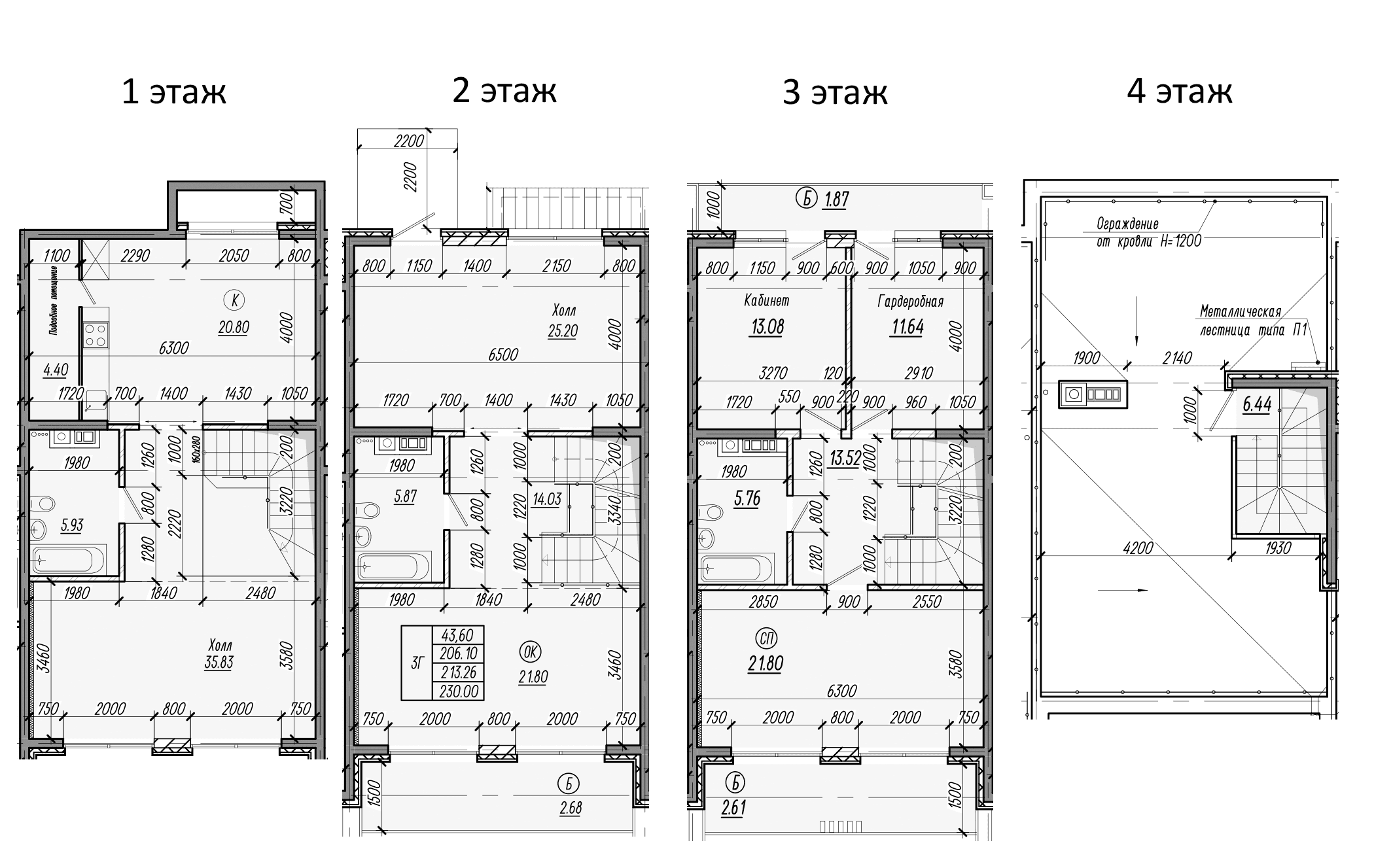
Планировка

О квартире

Тип квартирыТаунхаусы
Общая площадь263.24 м²
Площадь комнат21.8 м², 21.8 м², 13.08 м²
Площадь кухни20.8 м²
Приведенная площадь (для расчета цены)270.4 м²
Этаж1/3 эт.

Дополнительно

ОтделкаПодчистовая
Высота потолков3 м
Санузлы3
Номер квартиры4
Срок сдачиДом сдан

Условия покупки

Стоимость64 990 000 ₽

Расположение

Локация комплекса и инфраструктура рядом