1-комн., 36.9 м²

6 214 600 ₽Цена при 100% оплате161 000 ₽/м²

ЖК Прогресс • Застройщик ГК Владоград

Симферополь
сентябрь 2026 г.
2 этаж из 16

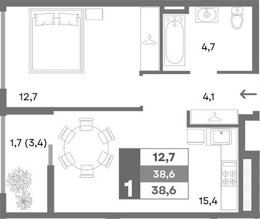
Планировка

О квартире

Тип квартиры1-комн.
Общая площадь36.9 м²
Площадь комнат12.7 м²
Площадь кухни15.4 м²
Приведенная площадь (для расчета цены)38.6 м²
Этаж2/16 эт.

Дополнительно

ОтделкаПодчистовая
Высота потолков2.8 м
Санузлы1
Номер квартиры15
Срок сдачисентябрь 2026 г.

Условия покупки

Стоимость6 214 600 ₽

Расположение

Локация комплекса и инфраструктура рядом