1-комн., 38.3 м²

6 658 600 ₽Цена при 100% оплате169 000 ₽/м²

ЖК Прогресс • Застройщик ГК Владоград

Симферополь
июнь 2029 г.
2 этаж из 15

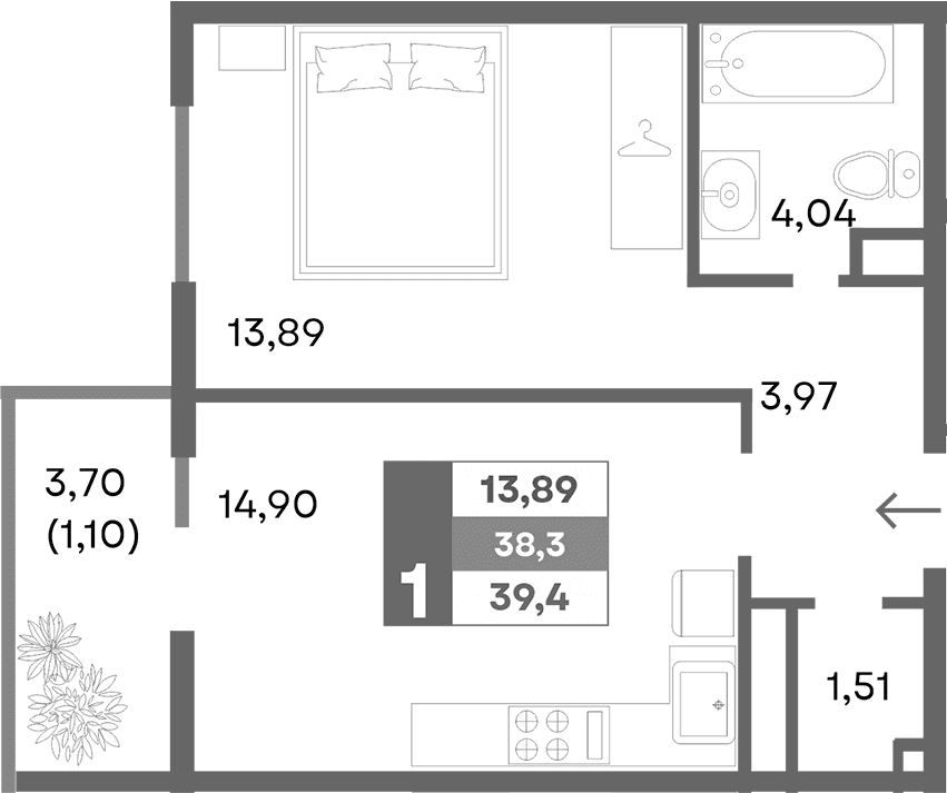
Планировка

О квартире

Тип квартиры1-комн.
Общая площадь38.3 м²
Площадь комнат13.89 м²
Площадь кухни14.9 м²
Приведенная площадь (для расчета цены)39.4 м²
Этаж2/15 эт.

Дополнительно

ОтделкаПодчистовая
Высота потолков2.8 м
Санузлы1
Номер квартиры583
Срок сдачииюнь 2029 г.

Условия покупки

Стоимость6 658 600 ₽

Расположение

Локация комплекса и инфраструктура рядом