2-комн., 60.7 м²

9 502 680 ₽Цена при 100% оплате151 800 ₽/м²

ЖК Прогресс • Застройщик ГК Владоград

Симферополь
сентябрь 2026 г.
2 этаж из 16

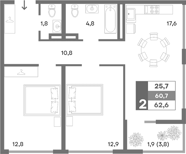
Планировка

О квартире

Тип квартиры2-комн.
Общая площадь60.7 м²
Площадь комнат12.8 м², 12.9 м²
Площадь кухни17.6 м²
Приведенная площадь (для расчета цены)62.6 м²
Этаж2/16 эт.

Дополнительно

ОтделкаПодчистовая
Высота потолков2.8 м
Санузлы3
Номер квартиры12
Срок сдачисентябрь 2026 г.

Условия покупки

Стоимость9 502 680 ₽

Расположение

Локация комплекса и инфраструктура рядом