3-комн., 78.1 м²

10 989 000 ₽Цена при 100% оплате135 000 ₽/м²

ЖК Прогресс • Застройщик ГК Владоград

Симферополь
июнь 2026 г.
8 этаж из 14

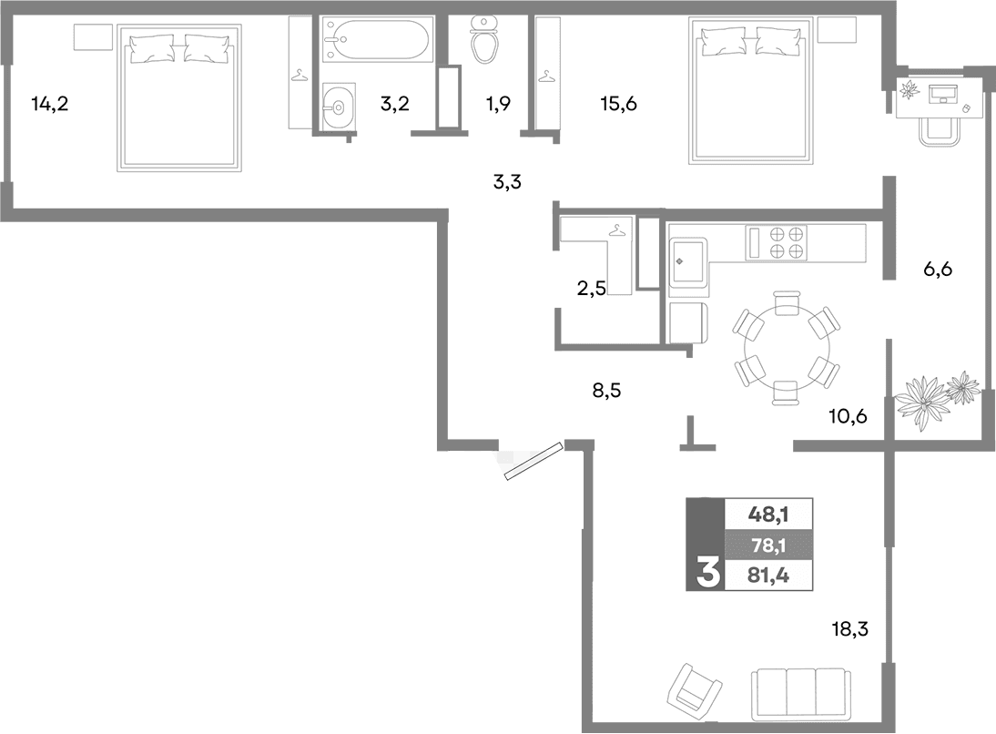
Планировка

О квартире

Тип квартиры3-комн.
Общая площадь78.1 м²
Площадь комнат14.2 м², 15.6 м², 18.3 м²
Площадь кухни10.6 м²
Приведенная площадь (для расчета цены)81.4 м²
Этаж8/14 эт.

Дополнительно

ОтделкаПодчистовая
Высота потолков2.8 м
Санузлы2
Номер квартиры470
Срок сдачииюнь 2026 г.

Условия покупки

Стоимость10 989 000 ₽

Расположение

Локация комплекса и инфраструктура рядом