3-комн., 69.77 м²

10 345 578 ₽Цена при 100% оплате144 390 ₽/м²

ЖК Прополис • Застройщик Монолит

Симферополь
сентябрь 2028 г.
4 этаж из 8

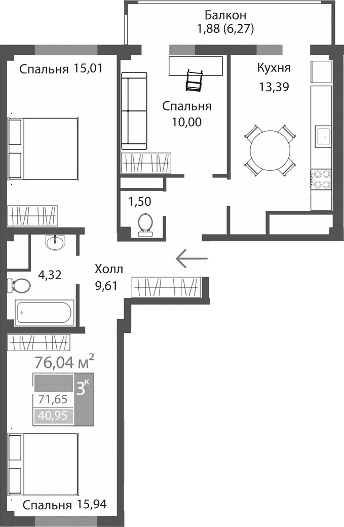
Планировка

О квартире

Тип квартиры3-комн.
Общая площадь69.77 м²
Площадь комнат10 м², 15.01 м², 15.94 м²
Площадь кухни13.39 м²
Приведенная площадь (для расчета цены)71.65 м²
Этаж4/8 эт.

Дополнительно

ОтделкаБез отделки
Высота потолков3 м
Санузлы3
Номер квартиры97
Срок сдачисентябрь 2028 г.

Условия покупки

Стоимость10 345 578 ₽

Расположение

Локация комплекса и инфраструктура рядом