1-комн., 57 м²

31 805 000 ₽Цена при 100% оплате476 837 ₽/м²

ЖК Резиденция Дипломат • Застройщик Добро Плюс

Ялта
Дом сдан
5 этаж из 8

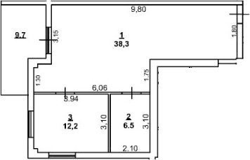
Планировка

О квартире

Тип квартиры1-комн.
Общая площадь57 м²
Площадь комнат12.2 м²
Площадь кухни38.3 м²
Приведенная площадь (для расчета цены)66.7 м²
Этаж5/8 эт.

Дополнительно

ОтделкаС бытовой техникой
Высота потолков3 м
Санузлы1
Номер квартиры26
Срок сдачиДом сдан

Условия покупки

Стоимость31 805 000 ₽

Расположение

Локация комплекса и инфраструктура рядом