Студия, 34.35 м²

8 250 000 ₽Цена при 100% оплате220 000 ₽/м²

ЖК Семисчастье • Застройщик Интерстрой. Севастополь

Севастополь
сентябрь 2028 г.
1 этаж из 7

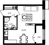
Планировка

О квартире

Тип квартирыСтудия
Общая площадь34.35 м²
Площадь комнат26.89 м²
Площадь кухни0 м²
Приведенная площадь (для расчета цены)37.5 м²
Этаж1/7 эт.

Дополнительно

ОтделкаПодчистовая
Высота потолков2.7 м
Санузлы1
Номер квартиры116
Срок сдачисентябрь 2028 г.

Условия покупки

Стоимость8 250 000 ₽

Расположение

Локация комплекса и инфраструктура рядом