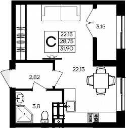
Студия, 28.75 м²

7 018 000 ₽Цена при 100% оплате220 000 ₽/м²

ЖК Семисчастье • Застройщик Интерстрой. Севастополь

Севастополь
сентябрь 2028 г.
9 этаж из 9

Планировка

О квартире

Тип квартирыСтудия
Общая площадь28.75 м²
Площадь комнат22.13 м²
Площадь кухни0 м²
Приведенная площадь (для расчета цены)31.9 м²
Этаж9/9 эт.

Дополнительно

ОтделкаПодчистовая
Высота потолков2.7 м
Санузлы1
Номер квартиры68
Срок сдачисентябрь 2028 г.

Условия покупки

Стоимость7 018 000 ₽

Расположение

Локация комплекса и инфраструктура рядом