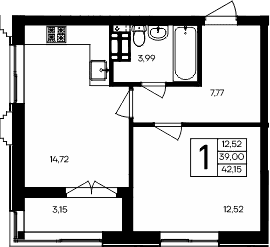
1-комн., 39 м²

9 062 250 ₽Цена при 100% оплате215 000 ₽/м²

ЖК Семисчастье • Застройщик Интерстрой. Севастополь

Севастополь
март 2028 г.
4 этаж из 9

Планировка

О квартире

Тип квартиры1-комн.
Общая площадь39 м²
Площадь комнат12.52 м²
Площадь кухни14.72 м²
Приведенная площадь (для расчета цены)42.15 м²
Этаж4/9 эт.

Дополнительно

ОтделкаПодчистовая
Высота потолков2.7 м
Санузлы1
Номер квартиры15
Срок сдачимарт 2028 г.

Условия покупки

Стоимость9 062 250 ₽

Расположение

Локация комплекса и инфраструктура рядом