1-комн., 34.11 м²

8 197 200 ₽Цена при 100% оплате220 000 ₽/м²

ЖК Семисчастье • Застройщик Интерстрой. Севастополь

Севастополь
сентябрь 2028 г.
5 этаж из 7

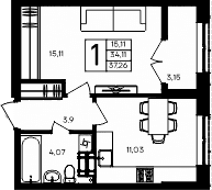
Планировка

О квартире

Тип квартиры1-комн.
Общая площадь34.11 м²
Площадь комнат15.11 м²
Площадь кухни11.03 м²
Приведенная площадь (для расчета цены)37.26 м²
Этаж5/7 эт.

Дополнительно

ОтделкаПодчистовая
Высота потолков2.7 м
Санузлы1
Номер квартиры170
Срок сдачисентябрь 2028 г.

Условия покупки

Стоимость8 197 200 ₽

Расположение

Локация комплекса и инфраструктура рядом