2-комн., 53.89 м²

11 978 400 ₽Цена при 100% оплате210 000 ₽/м²

ЖК Семисчастье • Застройщик Интерстрой. Севастополь

Севастополь
март 2028 г.
5 этаж из 9

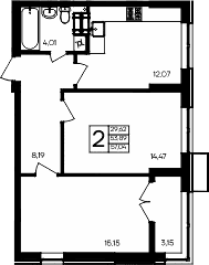
Планировка

О квартире

Тип квартиры2-комн.
Общая площадь53.89 м²
Площадь комнат14.47 м², 15.15 м²
Площадь кухни12.07 м²
Приведенная площадь (для расчета цены)57.04 м²
Этаж5/9 эт.

Дополнительно

ОтделкаПодчистовая
Высота потолков2.7 м
Санузлы1
Номер квартиры132
Срок сдачимарт 2028 г.

Условия покупки

Стоимость11 978 400 ₽

Расположение

Локация комплекса и инфраструктура рядом