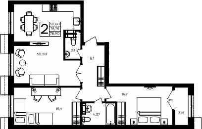
2-комн., 75.75 м²

14 991 000 ₽Цена при 100% оплате190 000 ₽/м²

ЖК Семисчастье • Застройщик Интерстрой. Севастополь

Севастополь
сентябрь 2028 г.
7 этаж из 7

Планировка

О квартире

Тип квартиры2-комн.
Общая площадь75.75 м²
Площадь комнат15.9 м², 14.7 м²
Площадь кухни30.58 м²
Приведенная площадь (для расчета цены)78.9 м²
Этаж7/7 эт.

Дополнительно

ОтделкаПодчистовая
Высота потолков2.7 м
Санузлы3
Номер квартиры183
Срок сдачисентябрь 2028 г.

Условия покупки

Стоимость14 991 000 ₽

Расположение

Локация комплекса и инфраструктура рядом