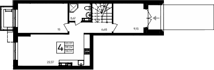
4-комн., 115.24 м²

21 310 200 ₽Цена при 100% оплате180 000 ₽/м²

ЖК Семисчастье • Застройщик Интерстрой. Севастополь

Севастополь
март 2028 г.
1 этаж из 9

Планировка

О квартире

Тип квартиры4-комн.
Общая площадь115.24 м²
Площадь комнат15 м², 13.96 м², 12.9 м², 11.71 м²
Площадь кухни22.37 м²
Приведенная площадь (для расчета цены)118.39 м²
Этаж1/9 эт.

Дополнительно

ОтделкаПодчистовая
Высота потолков2.7 м
Санузлы3
Номер квартиры83
Срок сдачимарт 2028 г.

Условия покупки

Стоимость21 310 200 ₽

Расположение

Локация комплекса и инфраструктура рядом