2-комн., 54 м²

9 570 000 ₽Цена при 100% оплате165 000 ₽/м²

ЖК Утесов • Застройщик Интерстрой. Симферополь

Феодосия
сентябрь 2027 г.
3 этаж из 7

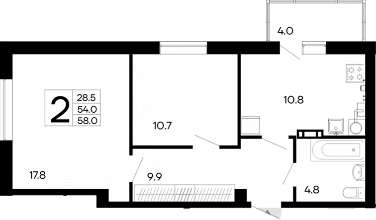
Планировка

О квартире

Тип квартиры2-комн.
Общая площадь54 м²
Площадь комнат10.7 м², 17.8 м²
Площадь кухни10.8 м²
Приведенная площадь (для расчета цены)58 м²
Этаж3/7 эт.

Дополнительно

ОтделкаБез отделки
Высота потолков2.7 м
Санузлы1
Номер квартиры20
Срок сдачисентябрь 2027 г.

Условия покупки

Стоимость9 570 000 ₽

Расположение

Локация комплекса и инфраструктура рядом