Студия, 37.66 м²

15 190 000 ₽Цена при 100% оплате328 078 ₽/м²

ЖК Garden • Застройщик ГК Карбон. Севастополь

Севастополь
Дом сдан
2 этаж из 5

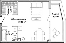
Планировка

О квартире

Тип квартирыСтудия
Общая площадь37.66 м²
Площадь комнат29.53 м²
Площадь кухни0 м²
Приведенная площадь (для расчета цены)46.3 м²
Этаж2/5 эт.

Дополнительно

ОтделкаПодчистовая
Высота потолков2.7 м
Санузлы1
Номер квартиры10
Срок сдачиДом сдан

Условия покупки

Стоимость15 190 000 ₽

Расположение

Локация комплекса и инфраструктура рядом