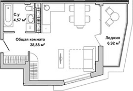
Студия, 33.18 м²

13 400 000 ₽Цена при 100% оплате334 165 ₽/м²

ЖК Garden • Застройщик ГК Карбон. Севастополь

Севастополь
Дом сдан
2 этаж из 5

Планировка

О квартире

Тип квартирыСтудия
Общая площадь33.18 м²
Площадь комнат28.88 м²
Площадь кухни0 м²
Приведенная площадь (для расчета цены)40.1 м²
Этаж2/5 эт.

Дополнительно

ОтделкаПодчистовая
Высота потолков2.7 м
Санузлы1
Номер квартиры12
Срок сдачиДом сдан

Условия покупки

Стоимость13 400 000 ₽

Расположение

Локация комплекса и инфраструктура рядом