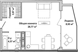
Студия, 36.65 м²

16 060 000 ₽Цена при 100% оплате352 193 ₽/м²

ЖК Garden • Застройщик ГК Карбон. Севастополь

Севастополь
Дом сдан
4 этаж из 5

Планировка

О квартире

Тип квартирыСтудия
Общая площадь36.65 м²
Площадь комнат28.77 м²
Площадь кухни0 м²
Приведенная площадь (для расчета цены)45.6 м²
Этаж4/5 эт.

Дополнительно

ОтделкаПодчистовая
Высота потолков2.7 м
Санузлы1
Номер квартиры30
Срок сдачиДом сдан

Условия покупки

Стоимость16 060 000 ₽

Расположение

Локация комплекса и инфраструктура рядом