1-комн., 35.82 м²

9 423 678 ₽Цена при 100% оплате222 940 ₽/м²

ЖК La Torre • Застройщик Mirmax

Симферополь
июнь 2028 г.
2 этаж из 4

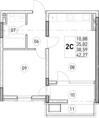
Планировка

О квартире

Тип квартиры1-комн.
Общая площадь35.82 м²
Площадь комнат10.88 м²
Площадь кухни17.12 м²
Приведенная площадь (для расчета цены)42.27 м²
Этаж2/4 эт.

Дополнительно

ОтделкаБез отделки
Высота потолков3.3 м
Санузлы1
Номер квартиры140
Срок сдачииюнь 2028 г.

Условия покупки

Стоимость9 423 678 ₽

Расположение

Локация комплекса и инфраструктура рядом