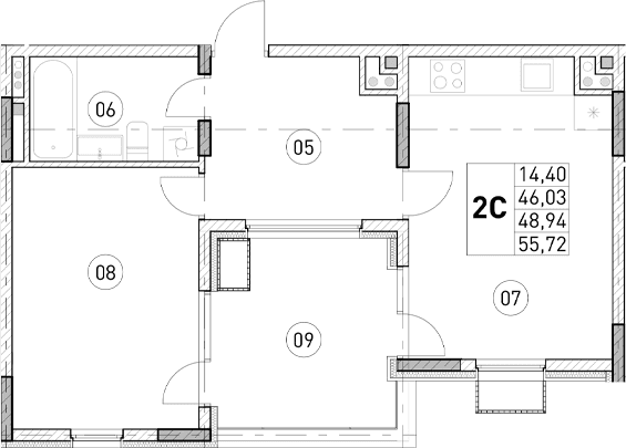
1-комн., 46.03 м²

11 843 480 ₽Цена при 100% оплате212 553 ₽/м²

ЖК La Torre • Застройщик Mirmax

Симферополь
июнь 2028 г.
3 этаж из 3

Планировка

О квартире

Тип квартиры1-комн.
Общая площадь46.03 м²
Площадь комнат14.4 м²
Площадь кухни17.76 м²
Приведенная площадь (для расчета цены)55.72 м²
Этаж3/3 эт.

Дополнительно

ОтделкаБез отделки
Высота потолков3.3 м
Санузлы1
Номер квартиры23
Срок сдачииюнь 2028 г.

Условия покупки

Стоимость11 843 480 ₽

Расположение

Локация комплекса и инфраструктура рядом