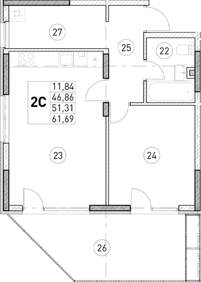
1-комн., 46.86 м²

11 683 287 ₽Цена при 100% оплате189 387 ₽/м²

ЖК La Torre • Застройщик Mirmax

Симферополь
июнь 2028 г.
1 этаж из 3

Планировка

О квартире

Тип квартиры1-комн.
Общая площадь46.86 м²
Площадь комнат11.84 м²
Площадь кухни20.28 м²
Приведенная площадь (для расчета цены)61.69 м²
Этаж1/3 эт.

Дополнительно

ОтделкаБез отделки
Высота потолков3.3 м
Санузлы1
Номер квартиры7
Срок сдачииюнь 2028 г.

Условия покупки

Стоимость11 683 287 ₽

Расположение

Локация комплекса и инфраструктура рядом