2-комн., 41.88 м²

10 848 090 ₽Цена при 100% оплате213 924 ₽/м²

ЖК La Torre • Застройщик Mirmax

Симферополь
июнь 2028 г.
2 этаж из 4

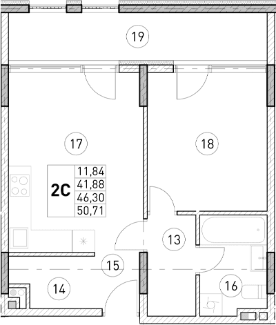
Планировка

О квартире

Тип квартиры2-комн.
Общая площадь41.88 м²
Площадь комнат11.84 м²
Площадь кухни17.19 м²
Приведенная площадь (для расчета цены)50.71 м²
Этаж2/4 эт.

Дополнительно

ОтделкаБез отделки
Высота потолков3.3 м
Санузлы1
Номер квартиры99
Срок сдачииюнь 2028 г.

Условия покупки

Стоимость10 848 090 ₽

Расположение

Локация комплекса и инфраструктура рядом