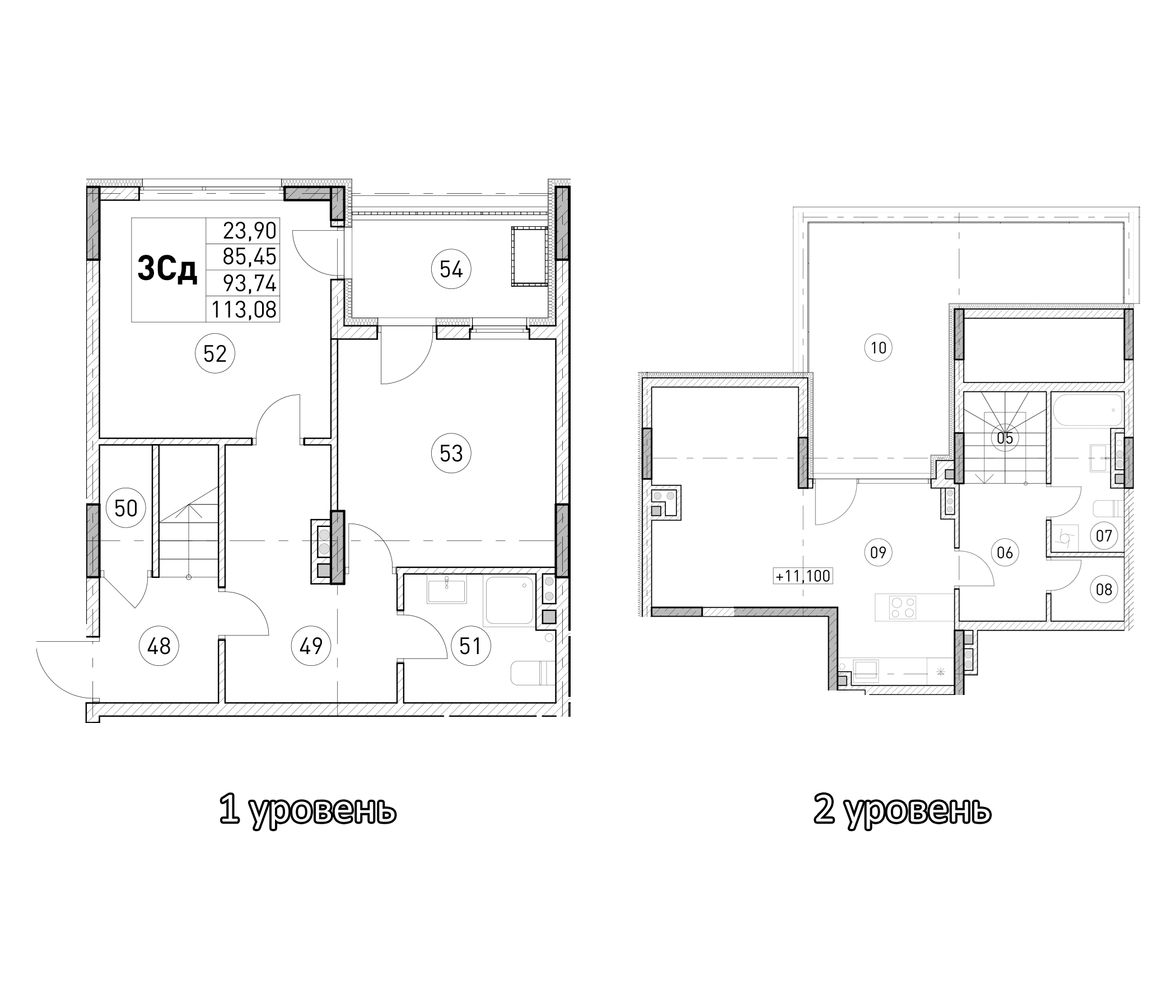
2-комн., 85.45 м²

19 347 936 ₽Цена при 100% оплате171 100 ₽/м²

ЖК La Torre • Застройщик Mirmax

Симферополь
июнь 2028 г.
3 этаж из 4

Планировка

О квартире

Тип квартиры2-комн.
Общая площадь85.45 м²
Площадь комнат12.6 м², 11.3 м²
Площадь кухни27.76 м²
Приведенная площадь (для расчета цены)113.08 м²
Этаж3/4 эт.

Дополнительно

ОтделкаБез отделки
Высота потолков3.3 м
Санузлы3
Номер квартиры179
Срок сдачииюнь 2028 г.

Условия покупки

Стоимость19 347 936 ₽

Расположение

Локация комплекса и инфраструктура рядом