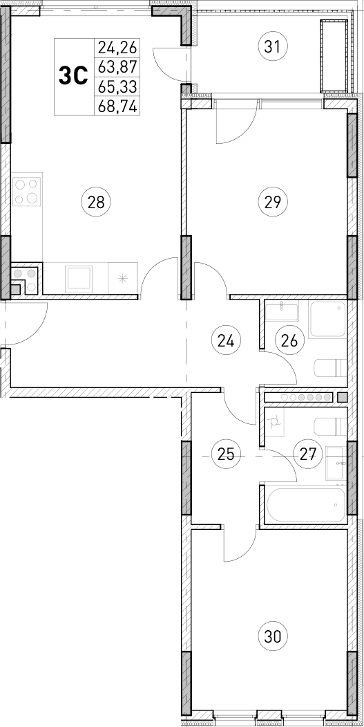
2-комн., 63.87 м²

14 607 788 ₽Цена при 100% оплате212 508 ₽/м²

ЖК La Torre • Застройщик Mirmax

Симферополь
июнь 2028 г.
3 этаж из 4

Планировка

О квартире

Тип квартиры2-комн.
Общая площадь63.87 м²
Площадь комнат12.42 м², 11.84 м²
Площадь кухни19.51 м²
Приведенная площадь (для расчета цены)68.74 м²
Этаж3/4 эт.

Дополнительно

ОтделкаБез отделки
Высота потолков3.3 м
Санузлы3
Номер квартиры187
Срок сдачииюнь 2028 г.

Условия покупки

Стоимость14 607 788 ₽

Расположение

Локация комплекса и инфраструктура рядом