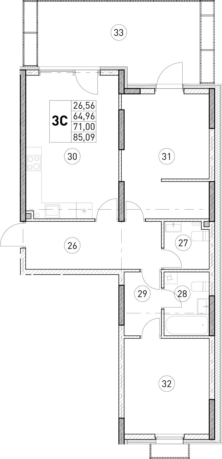
2-комн., 64.96 м²

15 493 975 ₽Цена при 100% оплате182 089 ₽/м²

ЖК La Torre • Застройщик Mirmax

Симферополь
июнь 2028 г.
1 этаж из 4

Планировка

О квартире

Тип квартиры2-комн.
Общая площадь64.96 м²
Площадь комнат15.04 м², 11.52 м²
Площадь кухни18.81 м²
Приведенная площадь (для расчета цены)85.09 м²
Этаж1/4 эт.

Дополнительно

ОтделкаБез отделки
Высота потолков3.3 м
Санузлы3
Номер квартиры205
Срок сдачииюнь 2028 г.

Условия покупки

Стоимость15 493 975 ₽

Расположение

Локация комплекса и инфраструктура рядом