2-комн., 64.84 м²

15 163 004 ₽Цена при 100% оплате178 451 ₽/м²

ЖК La Torre • Застройщик Mirmax

Симферополь
июнь 2028 г.
1 этаж из 4

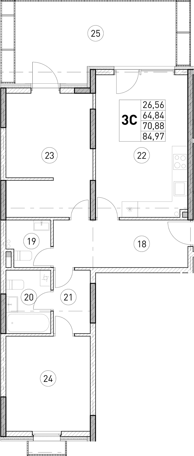
Планировка

О квартире

Тип квартиры2-комн.
Общая площадь64.84 м²
Площадь комнат15.04 м², 11.52 м²
Площадь кухни18.81 м²
Приведенная площадь (для расчета цены)84.97 м²
Этаж1/4 эт.

Дополнительно

ОтделкаБез отделки
Высота потолков3.3 м
Санузлы3
Номер квартиры208
Срок сдачииюнь 2028 г.

Условия покупки

Стоимость15 163 004 ₽

Расположение

Локация комплекса и инфраструктура рядом