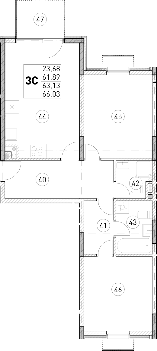
2-комн., 61.89 м²

13 844 409 ₽Цена при 100% оплате209 668 ₽/м²

ЖК La Torre • Застройщик Mirmax

Симферополь
июнь 2028 г.
2 этаж из 4

Планировка

О квартире

Тип квартиры2-комн.
Общая площадь61.89 м²
Площадь комнат12.48 м², 11.2 м²
Площадь кухни18.46 м²
Приведенная площадь (для расчета цены)66.03 м²
Этаж2/4 эт.

Дополнительно

ОтделкаБез отделки
Высота потолков3.3 м
Санузлы3
Номер квартиры233
Срок сдачииюнь 2028 г.

Условия покупки

Стоимость13 844 409 ₽

Расположение

Локация комплекса и инфраструктура рядом