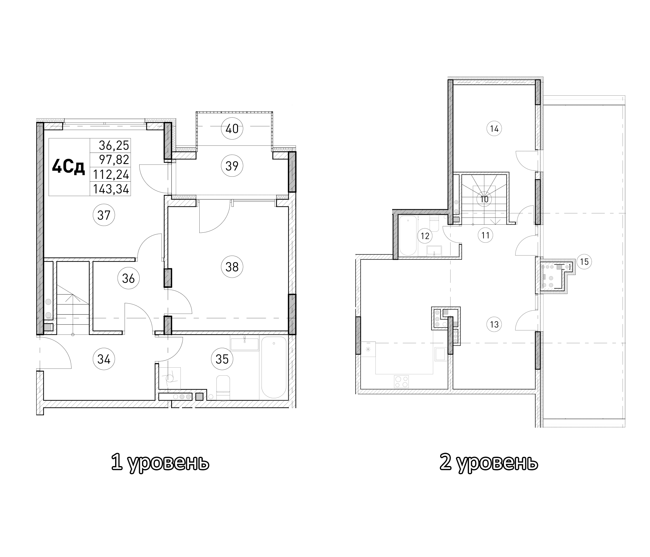
3-комн., 97.82 м²

22 563 046 ₽Цена при 100% оплате157 409 ₽/м²

ЖК La Torre • Застройщик Mirmax

Симферополь
июнь 2028 г.
3 этаж из 4

Планировка

О квартире

Тип квартиры3-комн.
Общая площадь97.82 м²
Площадь комнат11.05 м², 11.55 м², 13.65 м²
Площадь кухни34.66 м²
Приведенная площадь (для расчета цены)143.34 м²
Этаж3/4 эт.

Дополнительно

ОтделкаБез отделки
Высота потолков3.3 м
Санузлы3
Номер квартиры126
Срок сдачииюнь 2028 г.

Условия покупки

Стоимость22 563 046 ₽

Расположение

Локация комплекса и инфраструктура рядом