Студия, 31.9 м²

21 797 000 ₽Цена при 100% оплате593 924 ₽/м²

ЖК ROYALTA • Застройщик ГК Точно. Крым

Ялта
июнь 2027 г.
4 этаж из 9

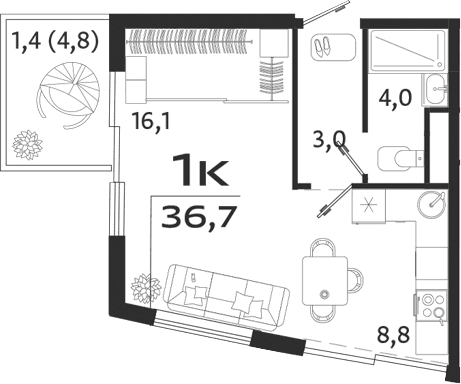
Планировка

О квартире

Тип квартирыСтудия
Общая площадь31.9 м²
Площадь комнат24.9 м²
Площадь кухни0 м²
Приведенная площадь (для расчета цены)36.7 м²
Этаж4/9 эт.

Дополнительно

ОтделкаБез отделки
Высота потолков3 м
Санузлы1
Номер квартиры13
Срок сдачииюнь 2027 г.

Условия покупки

Стоимость21 797 000 ₽

Расположение

Локация комплекса и инфраструктура рядом