3-комн., 75.34 м²

12 112 222 ₽Цена при 100% оплате152 643 ₽/м²

ЖК Подсолнух • Застройщик Монолит

Симферополь
июнь 2028 г.
4 этаж из 9

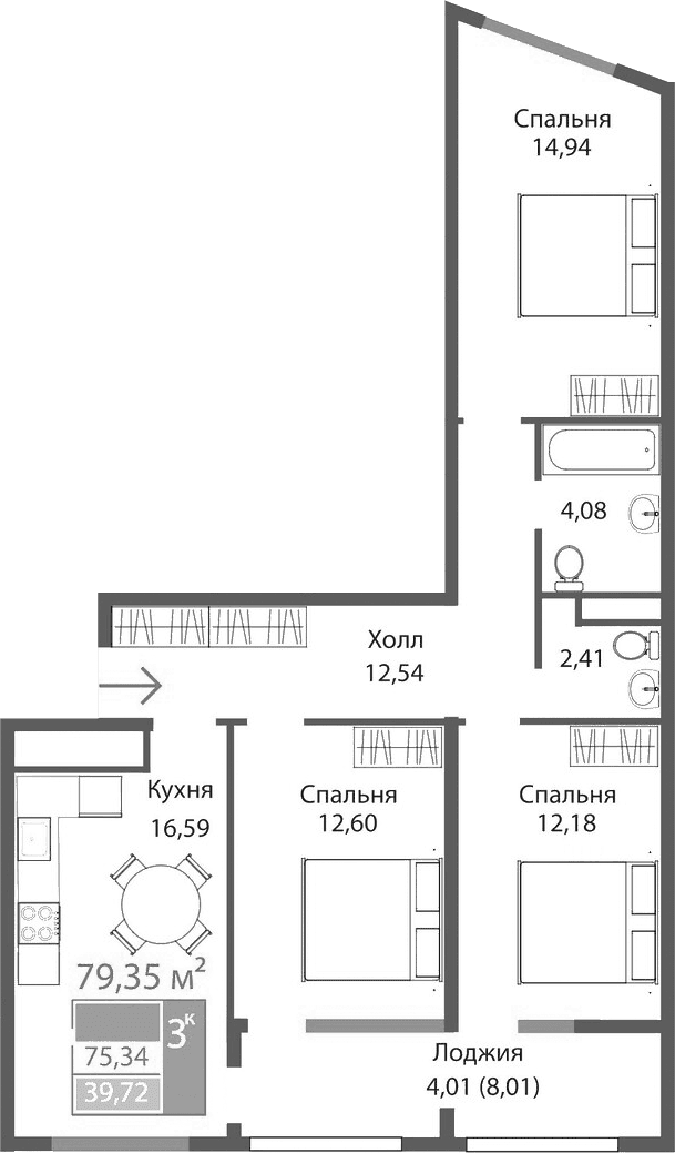
Планировка

О квартире

Тип квартиры3-комн.
Общая площадь75.34 м²
Площадь комнат12.18 м², 12.6 м², 14.94 м²
Площадь кухни16.59 м²
Приведенная площадь (для расчета цены)79.35 м²
Этаж4/9 эт.

Дополнительно

ОтделкаБез отделки
Высота потолков2.8 м
Санузлы2
Номер квартиры420
Срок сдачииюнь 2028 г.

Условия покупки

Стоимость12 112 222 ₽

Расположение

Локация комплекса и инфраструктура рядом