3-комн., 78.03 м²

12 481 812 ₽Цена при 100% оплате152 143 ₽/м²

ЖК Подсолнух • Застройщик Монолит

Симферополь
июнь 2028 г.
6 этаж из 9

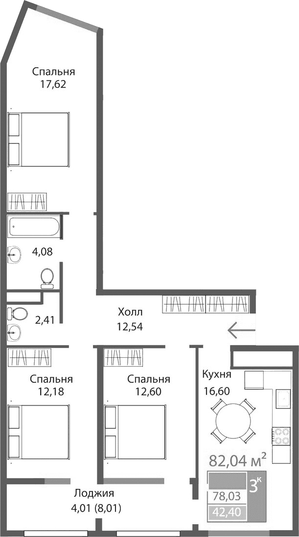
Планировка

О квартире

Тип квартиры3-комн.
Общая площадь78.03 м²
Площадь комнат12.18 м², 12.6 м², 17.62 м²
Площадь кухни16.6 м²
Приведенная площадь (для расчета цены)82.04 м²
Этаж6/9 эт.

Дополнительно

ОтделкаБез отделки
Высота потолков2.8 м
Санузлы2
Номер квартиры616
Срок сдачииюнь 2028 г.

Условия покупки

Стоимость12 481 812 ₽

Расположение

Локация комплекса и инфраструктура рядом